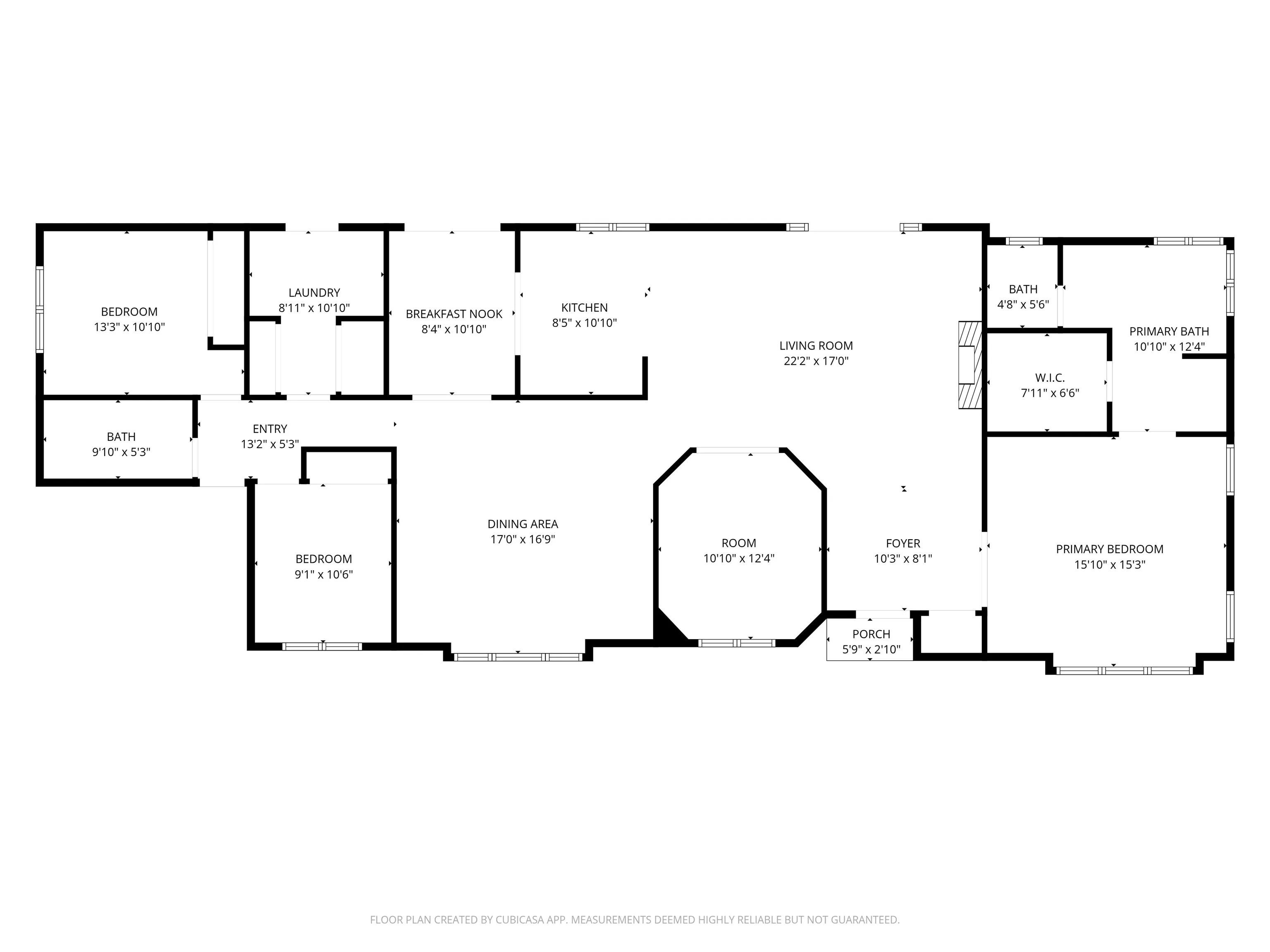
This beautifully maintained Pueblo-style home, constructed in 2006, offers breathtaking views, convenient access to Taos’s renowned amenities, and a short drive to their attractions. Schedule a viewing appointment today to experience this four-bedroom, two-bathroom sanctuary nestled in the heart of Northern New Mexico. Spanning 2,224 square feet, with a 2-car attached garage, this home sits on a one-acre landscaped property that boasts a meticulously designed interior with tile and pergo style flooring, granite countertops, stainless steel appliances, and elegant decor. The open floor plan is well designed and is perfect for day to day living or for entertaining. The master suite is spacious and features a walk-in closet and master bathroom with a jetted tub and walk-in shower. The spacious outdoor living area is further enhanced by mature trees, a patio, a covered porch, and panoramic views of the majestic Sangre de Cristo mountains. Strategically located, the home is approximately 10 minutes from the Town of Taos, 25 minutes from the Taos Ski Valley, 9 minutes from the Rio Grande Gorge Bridge, and 5 minutes from the Taos Regional Airport, this home provides unparalleled convenience for those seeking a Northern New Mexico lifestyle. Please reach out if you would like to see this home in person.



































